
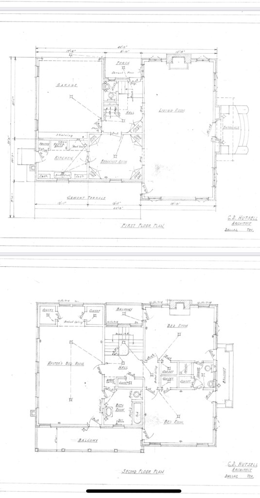
The house was designed by Clifford Dorris (CD) Hutsell and built in 1930.
CD Hutsell (<~ click for more info) was a self-taught architect/builder and he designed 50 homes in Lakewood between 1926-1941. Most of his homes were designed in the Spanish Revival style and were inspired by his travels to Southern California to visit the silent movie star,Tom Mix’s, estate. CD Hutsell was a carpenter by trade and employed the same small group of expert craftsman for most of his projects. Because of his commitment to quality construction and attention to detail many of his homes have stood the test of time and are still intact today. Most “Hutsell’s” are on Lakewood Blvd but there are others scattered throughout Lakewood, in other areas of Dallas, and one (possibly another), is still standing proud in Longview, TX. We purchased our Hutsell in 2018 and began an extensive remodel with formal construction completion at the end of 2020, although the “to-do” list is constantly evolving and likely never to be officially completed.
Before Photos in 2018



After Photos
Front Elevation 2021


We couldn’t have done any of this without our excellent renovation team!!
Renovation Architect:
Eddie Maestri
Builder/Contractor:
Sheri and Regan Barringer
Interior Designer:
Josh Pickering
Landscape Architect:
Dan Houchard
Renovation Details…
Much of the original footprint of the home remains the same. New construction includes the front courtyard, back courtyard/patio, downstairs powder bath, laundry/mudroom and the Orangery, although we usually refer to this space as the “day room.” We preserved as many of the original architectural features as possible: the Batchelder fireplace, Potter’s ironwork stair railing, plaster walls, decorative built-in shelves, wood paneling/moldings, metal casement and wood windows, arched wall niches, mirrored doors, glass doorknobs, and parquet and thin-gauge wood floors. Preserving the home’s original “Hutsell hallmarks” was paramount but we also wanted to make the home functional for a young-ish family and match our own aesthetic taste.
As a Francophile, I wanted to incorporate Provence-inspired elements throughout the renovation giving our Spanish Revival home a French twist. To achieve the French-inspired design updates, architect Eddie Maestri (Maestri Studio), incorporated a new gas lantern over the front door, new french doors that allowed for an indoor/outdoor feel with the front courtyard, striped awnings, Provence-style shutters, a black and white tiled entry, back courtyard and a L’Orangerie connecting the original house to the back house. Finding the balance between creating a new design aesthetic while also honoring the original look and feel of the home was not always easy, but we are pleased with the end result and feel blessed to live and own a historic home with 93 years (and counting) of history.
Courtyard Construction/Front Elevation


Many of the Hutsell homes on Lakewood Blvd have charming front-facing or side courtyards built into the front elevation. We loved the idea of a courtyard for design aesthetics, entertaining and to have an additional barrier away from a busy street for pets and kids. Since we did not inherit a courtyard with our Hutsell, adding one during the renovation was at the top of our to-do list. The design inspiration for the courtyard was the South of France where you often see pea gravel, large potted boxwoods in clay pots and small bistro tables scattered throughout the gardens. The blue courtyard gate was inspired by one found at the Mas de Poiriers, a large estate in Avignon, and it was fabricated by the Barringer Home’s team. The bell on the side of the blue gate was originally from an Abbey outside of Aix-en-Provence. The black and white tile added to the front porch was also reclaimed from France. The striped awnings and wood shutters were added to honor the original Hutsell front elevation. The plaster balcony is original and believed to be the only cantilevered balcony on a Hutsell designed home.





Much effort went into selecting the perfect shade of blue for the new gate, shutters and original wood balusters on the side balcony. We settled on a custom shade of delft blue.



The front door is original but was refinished during the renovation. The original small stained glass window can be opened to peek out at visitors or check for packages. The stained glass was recently restored to repair a small crack.
Courtyard 2023



Entry/Formal Living Room
Before Photo


Architect, Eddie Maestri, was instrumental in helping us preserve the original footprint of the home while also making strategic changes that made the house feel up-to-date and our own. One of these changes was opening up the narrow entry between the living room and stair hall with a large archway. The new archway mimics the original plaster archway between the living room and library. Another archway was added leading into the family room. These symmetrical archways opened up site lines between the front door to the family room, which allowed for more natural light to flow between the two spaces.


The pair of gilded wood sconces were found at the Paris antique market (Saint Ouen Puces) and shipped back during the renovation.




Living Room Details:
- The large gauge parquet hardwood flooring is original.
- The Batchelder fireplace is original. To read more about the tile artist, Ernest Batchelder click here Batchelder .
- Interior selections by Pickering House Interiors and Sheri Barringer.
- The fireplace screen was designed by designer, Josh Pickering (Pickering House Interiors), and was inspired by the wavy stair balusters often found in “Mas” properties (large farm houses) or Chateaus in the South of France.
- The oval oil painting of the “Girl in the Blue Dress,” is early 19th century and was found at auction.
- The pair of spotted deer are Chinese cloisonné.
- The large abstract blue painting is a commissioned work by Laura McCarty.
- The transitional dark blue painting is “Spotlight” by Kacey Hughes.
- The blue & white porcelain plates on the wall are antique Chinese export and many pieces of 18th Century Delft pottery are displayed throughout the room.
- The two pencil sketches in gilded frames are by Rob Van Trier.
- The Louis XVI antique commode was found locally, as well as, the gilded console table with marble top.
- The French doors were added by Maestri Studio to achieve an indoor/outdoor feel and allow easy access to the front courtyard.
- The windows on each side of the fireplace are the original steel casement windows with leaded glass.
- All plaster walls in the home were refinished with a smooth texture.
- The large plaster archway leading into the library is original.
- Original plaster walls, cove ceilings and trim work were restored as much as possible by Barringer Homes.



Legacy Home Owner
- One of the original home owners of 7102 Lakewood was George Schepps (family owned Schepps dairy). He owned several businesses, including a lucrative brewery company, but his passion was baseball. He was one of the founders of the professional baseball league of Dallas and often referred to as a founding father of Texas baseball. He is also in the Texas baseball hall of fame. He owned and managed the minor league team, Dallas Rebels, for many years later changing the team name to the Dallas Rangers. Eventually, a MLB team relocated to DFW from Washington and they adopted the name, Texas Rangers.




The news clip is still available at the criticalpast.com
Library

- The bookshelves and window seats were added during the renovation, as well as, the French doors leading to the front courtyard.
- The steel casement windows on each side of the bookshelf are original.
- the original parquet floor remains.


an inside/outside feel with the front courtyard.

Jenifer Baker Studio

Library Details
- Interior selections by Pickering House Interiors.
- The large floral painting is by Bill Tansey.
- The plaster medallions on each side of the secretary were sourced from an antique shop in London.
- The antique French Empire light fixture and sconces and the Louis XVI Gilded Mirror were sourced at the Les Puces de Saint-Ouen and shipped back to the US in a crate during the renovation. The fixtures were re-wired locally by Crow Chandelier.
- The large antique Persian rug was also found at the Saint-Ouen market.
- The antique books were all sourced locally.
- The blue and white porcelain pieces on the book shelf are Chinese Export and found over time.
- The vintage oil paintings on the bookcase were found at Round Top.
- The home’s original front elevation photo can be found on the Louis XVI antique secretary and Hutsell’s original 1930 house plans are framed and displayed on the archway wall.



Downstairs Powder Bath


Powder Bath Details
- The original powder bath was under the stairs, which is now a small storage closet.
- The beams on the powder bath ceiling were the original porch beams and restored during the renovation by Barringer Homes.
- The limestone sink is from Pittet Architecturals.
- The limestone tile was quarried in France and purchased locally via RF Imports.
- The toilet is the original and is dated May 1926.
- The oil paintings outside the powder bath were sourced at antique markets in France.




Main Stair hall
- The original wood steps and paneling were restored during the renovation by Barringer Homes.
- The two wood windows with leaded glass are original.
- The Potter’s ironwork stair railings and balusters are original. A small section of stair railing was replicated from the original by a local iron fabricator after the archway leading to the family room was enlarged.
- The collection of English Equestrian oil paintings were found overtime and Pickering House Interiors orchestrated the layering of the paintings over the antique tapestries. The original picture rail moldings were used with brass hooks and chains to install the oil paintings.
- The large Aubusson tapestry was found at the Les Puces de Saint-Ouen. The smaller Aubusson tapestry was found at auction.
- The small blue plates are late 18th century Delft, in the peacock pattern, and part of a larger collection.
- The gilded barometer was purchased via an auction house out of The Netherlands. There are photos online showing the barometer in the entry hall of a large home in the Sint Odilienberg, Netherlands countryside, the Frymerson estate. Unfortunately, it did not fare well during shipping and had to be restored by a clock/barometer craftsman outside of Austin. He also carefully removed the original mercury tube for safety purposes.
- The brass lantern is a fixture we previously had installed in a former home.





Jenifer Baker Studio
Primary Suite/bath Details
- The floor plan was redesigned by Maestri studio to include a new fireplace and a larger walk-in closet. The original balcony off the primary suite was used for the new closet.
- The wood floors are original.
- The large armoire was found at an auction house in East Texas and restored locally by Tim Alexander.
- The bed was custom designed by Pickering House Interiors.
- The Swedish bench at the end of the bed was sourced by Pickering House Interiors and reupholstered in fortuny fabric.
- The pair of bedside cabinets were sourced from an antique shop in Atlanta.
- The large chinoiserie painting was a commissioned piece by Mauri Pohlman. It includes representative figures of our family and pets. Mauri has painted several commissioned murals around Dallas and Lakewood. Her largest Lakewood mural is at the corner of Gaston/Abrams.
- The primary bathroom was also redesigned by Maestri Studio to include a new water closet and double vanities/sinks, additional storage and a larger window.






Jenifer Baker Studio






Jenifer Baker Studio
Boy’s West Bedroom & Bath Details
- The hunting dog prints and vintage “paint by number” pieces were collected over time and framed by Beaux Arts.
- The built-in shelves are original.
- The small heart pine bed has been passed down in the family for four generations and is close to 100 years old.
- The original plaster cove ceilings in both boys’ rooms were replaced by Barringer Homes during the renovation for safety purposes.
- The steel casement windows were preserved to help maintain the original front elevation in both boys’ rooms. The other windows in their rooms were replaced with new energy efficient windows.


The small shared bathroom was reconfigured during the renovation to create better flow and functionality. Two pedestal sinks were added and a small closet space was repurposed for a toilet nook. The shower remains in the same spot. This was the only bathroom in the home with original 1930s ceramic tile. Unfortunately, a lot of the tile had to be removed as part of the bathroom renovation. It would have been difficult to try to repair and/or match the original colors and we wanted tile to go all the way up the wall for aesthetics and simplicity in cleaning a bathroom for two young boys. The hard choice was made to replace the original green and yellow tile with simple white subway tiles. The new blue and white penny floor tiles pay homage to the original penny floor tile.


Jenifer Baker Studio
Boy’s East Bedroom & Balconies
- The sailboat watercolor is by Mary Maguire.
- The large vintage flag was found online and framed by Beaux Arts.
- This room has access to the front balcony, as well as, a side balcony.
- Both balconies are original. The stained glass fixture on the side balcony is original.
- The blue and white tile on both balconies was added recently by Alex Jurado.


The East balcony maintains the original stained glass fixture and the Hutsell signature wood railing.


The view from the front balcony, believed to be the only Hutsell with a cantilevered balcony.
Dining Room Details
- The built-ins are original and arched glass doors were added during the renovation. The arched cabinet doors were inspired by cabinets in the Aldredge house on Swiss Avenue.
- The mural wallpaper panels were sourced from Papiers de Paris out of France and framed locally.
- The framed black and white photo was sourced by Pickering House Interiors and is a scene from the Palace of Versailles.
- The light fixture was custom designed and inspired by a light fixture found in the Mas de Poiriers- a house in Avignon that inspired many design choices during the renovation. The chandelier was fabricated by Crow Chandelier.
- The gilded candle sconces were found at Wolf Hall Antiques and rewired for electric bulbs.
- The Louis XV wrought iron console table with marble top was found at Antique Vintage and restored by Tim Alexander.
- The ceiling crown was designed by Pickering House Interiors and fabricated by Casci plaster company.
- Many of the dishes in the cabinet were passed down to us by my maternal grandparents. Several are blue willow and “occupied Japan” pieces, which were purchased when my grandfather was in the Air Force and stationed in Japan. My maternal grandmother, Billie Tramel, loved to decorate and collect antiques. She always had a beautiful collection of blue and white plates displayed in their home and I know that inspired my love for all things blue and white.





Jenifer Baker Studio


The antique table and chairs were sourced locally. Pickering House Interiors oversaw reupholstering the antique chairs and sourcing other interior selections, including, the striped wallpaper with ribbon trim.
Family Room details
- The fireplace was added during the renovation and the mantle was inspired by mantles commonly seen in the south of France. It was fabricated locally and overseen by the Barringer Home’s team.
- The antique fire brick is from Pittet Architecturals.
- The cabinets were designed by Pickering House Interiors and painted in the flemish style.
- The pieces displayed on the cabinet are late 18th century Delft and French faience.
- Interior Selections by Pickering House Interiors
- The vintage bullseye mirror was sourced from an antique shop in Atlanta.
- The large hand-carved wood pediment is from Spain and was originally on the outside of a crypt. It is signed and dated on the back 1772. The angel with the serpent and wheat sickle symbolizes that life is short and one must make every minute count.
- The awning covered patio off the family room was designed by Maestri Studio and Dan Houchard (From the Ground Up) and added during the renovation. It features the same french limestone used elsewhere in the home and the ironwork was fabricated locally to match the original Potter’s ironwork stair railings. The french doors were added to allow access to the new patio and a new bank of windows were added to increase natural light.
- The hand-fabricated gas lanterns were designed by Copper Sculptures.





Jenifer Baker Studio



The “after” of the family room patio. The iron railing replicates the original Potter’s ironwork stair railing. To the right of the patio is the new kitchen wall bump-out.
Kitchen/Pantry Details
- The kitchen layout was reimagined by Maestri Studio, with the original kitchen wall (where the farmhouse sink is now), bumped out to allow for more space and a new bank of windows was added to increase natural light.
- The china hutch, custom cabinetry, appliances and large island were all added during the renovation.
- The countertops are bianca bello carrera marble. The marble backsplash behind the range was designed by Maestri Studio and fabricated by the Barringer Home’s team.
- The delft blue Lacanche stove was fabricated and shipped from France during the renovation.
- The faucets and hardware are all unlacquered brass that naturally patinas over time.
- The mural over the range was designed by Pickering House Interiors and hand-painted by a local artist.
- The light fixtures over the island were custom designed by Pickering House Interiors and made locally.
- The display cabinet highlights a French faience (pottery) collection.
- The antique pantry door is flemish from the 1890s and was found locally at Country Garden Antiques. The original paint remains, as well as, the etched glass.
- The pantry was added during the renovation as part of the only “new square footage” construction. The original footprint of the home ended at the entry to the pantry.





Jenifer Baker Studio

The diamond trim design at the ends of the kitchen island was inspired by door details found at the La Miranda hotel during a trip to Avignon. The same trim detail is also on the primary suite bedroom door.


The small wicker lantern was sourced from an antique dealer in Nice, France.



The Orangery/Back Courtyard
- The addition was designed by Maestri Studio to connect the original home with the backhouse. The add-on allowed us to add a laundry/mud room, incorporate a guest suite, game room area for the boys and two bathrooms into the main home.
- The day room design was inspired by L’Orangeries found throughout Europe, particularly the South of France.
- The space is multi-functional and used daily. It’s a perfect spot for morning breakfast, homework, online work meetings, organizational family storage (in the custom cabinets), and a nice place to sit with a book on a sunny day.
- The limestone floor was quarried in France and purchased via RF Imports.
- The plaster faux bois (faux wood) brackets with porcelain birds were designed by Pickering House interiors and fabricated by Casci plaster company.
- The framed garden plans are by Thoin Gabriel and titled, “Plans Raisonnes de Toutes les Especes de Jardins Paris 1820.”
- Cabinetry and mill work were designed by Maestri Studio.
- This room is often used for small parties along with the back courtyard. During events, when the weather is nice, the doors are usually open connecting the two spaces.
- The back courtyard was designed by Maestri Studio and From the Ground Up. The original plans included a small plunge pool in the center of the courtyard and we hope to add this at some point in the future.









The courtyard all dressed up for a cocktail party.
Laundry/Mud Room Details
- The laundry/mud room area was added during the renovation. The original home did not have a dedicated laundry area, but did have a small stackable in an upstairs closet.
- The reclaimed wood doors were sourced at Antique Vintage in Forney and at Round Top. They were refabricated to fit the space by Barringer Custom Homes. The doors hide the washer/dryer and a utility closet.
- The sink was hand-painted by a company in Louisiana in the chinoiserie style.
- The stairwell off this area was originally the stairwell leading to the back house. The back house was incorporated into the main house during the renovation to allow for a guest suite and game/tv room.


TV Room/Upstairs Powder Bath Details
- There are two hidden storage closets in this space.
- This room is used for watching movies, playing video games and is generally the hang-out spot for the boys.
- Cosmetic changes made by Sheri Barringer and Pickering House Interiors include: new windows, paint and wallpaper.
- The wood floors are original.
- The large stained glass window in the stair hall was found at an estate sale at another home on Lakewood Boulevard. It was restored by Barringer Custom Homes and reinforced with steel framing for installation.








The built-in bookshelf opens up to a storage closet.
Guest Room & Bath DETAILS
- The guest room had been damaged previously by a small house fire.
- It originally had a small window unit with minimal natural light.
- A larger window was added to help brighten the space and central a/c was installed during the renovation.
- Extensive cosmetic changes were made to the room and bath via Pickering House Interiors and Sheri Barringer.
- The wallpaper selections found in the bedroom and bath were selected by Pickering House Interiors. They are actually fabric reinforced for wallpaper installation with custom ribbon trim.
- The two royal portraits of King Edward II and Queen Alexandra are made from seeds and were gifted to the king and queen during their trip to Africa. They were originally in the royal residence, Sandringham House, outside of Norfolk, England. The portraits were passed down to a Mrs. Pinka after her family inherited the portraits from a distant relative in the early 1900s. The relative had been a security guard stationed at Sandringham estate. He was gifted the seed portraits by the Queen one year during their annual staff Christmas Party. A 1964 clipping from the Dallas Morning News has a photo of the seed portraits and more details about the Pinkas’ family trip to England to visit their family in Snettisham. The photo and article are on the small antique desk.
- The antique Victorian mirror was passed down to us by my great uncle, Odel Tramel, who loved collecting antiques with his late wife, Suzy.





Misc. Tidbits


Check out Orangery House on instagram at Orangery House and shop our latest antique and vintage finds at City View Antique Mall or on Chairish at Orangery House .

Leave a comment